Укупно приказа странице
уторак, 21. април 2020.
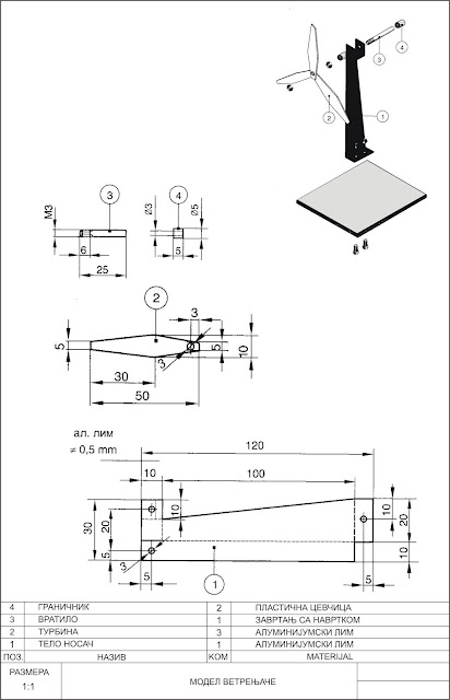
СЕДМИ РАЗРЕД - МОДЕЛ ВЕТРЕЊАЧЕ
ЗАДАТАК: МОДЕЛ ВЕТРЕЊАЧЕ - ТЕХНИЧКИ ЦРТЕЖ
1. Нацртати технички цртеж ветрењаче.
2. Фотографисати свеску и послати на мејл.
Цртеж шаљите на мејл drazen.sipka@osradedrainac.edu.rs
**************************************************
Нема коментара:
Постави коментар
Новији пост
Старији пост
Почетна
Прикажи верзију за мобилне уређаје
Пријавите се на:
Објављивање коментара (Atom)
Нема коментара:
Постави коментар